...главная
...карта сайта
Становление мастера
Первые работы
Купол Санта Мария дель Фьоре
Воспитательный дом
Церковь Сан Лоренцо
Капелла Пацци
Церковь Санто-Спирито
Конец пути
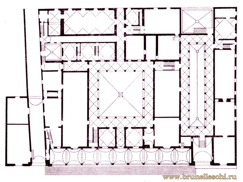
План Воспитательного дома, или Оспедале дельи Инноченти
1421-1444. Брунеллески. Флоренция.
предыдущая
/
главная
/
следующая иллюстрация